Draining Water Separator

SERVICE INTERVAL - DAILY OR 10 HOURS

 

NOTE: 8.1 L Engine: When separator sensor identifies water in the fuel system, the service alert indicator will flash on the cornerpost display. An alarm will sound for five seconds and a corresponding message appears on the CommandCenter display.

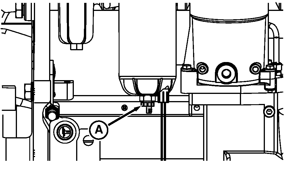
Open drain valve (A) and drain accumulated water. Close drain valve.


A-Drain Valve

RXA0068478

6.8 L Engine

RXA0068479

8.1 L Engine - Early Version

RXA0071421

8.1 L Engine - Later Version

OURX986,00001C0 -19-13JUL05-1/1