Every 200—Knife Drive Slip Clutch
CAUTION: Serious injury or death may result if platform lowers
during lubrication. Raise platform completely, engage feeder house
safety stop, shut OFF engine, set parking brake, and remove key.

H93032-UN-02MAR10
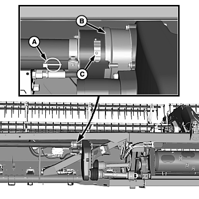
A - Retaining Pin
B - Clutch Sleeve
C - Slip Clutch Grease Fitting
Lubricate Knife Drive Slip Clutch Grease
Fitting
Remove retaining pin (A).
Slide clutch sleeve (B) over to expose access window.
Apply grease to slip clutch grease fitting (C).
NOTE: Slip clutch has multiple fittings for ease of access only.
Applying grease to one fitting is sufficient.
|
|
DF67602,0000446-19-20150224
|
|