Machine Dimensions

N60184

Shown in Raised Position

 

A-3651 mm (143.75 in.)

B-3810 mm (150 in.) 4 Units on 762 mm (30 in.) Row Spacing
4394 mm (173 in.) 4 Units on 1016 mm (40 in.) Row Spacing
5537 mm (218 in.) 6 Units on 762 mm (30 in.) Row Spacing
5994 mm (236 in.) 6 Units on 1016 mm (40 in.) Row Spacing

 

AG,OUO1011,1753 -19-17MAR05-1/6


N67589


A-Guide Wheel Width From Factory, Center-To-Center Of Tires; 2082 mm (82 in.) Or 2286 mm (90 in.)


B-Inner Dual Drive Wheels, 1981 mm (78 in.) Min.
2565 mm (101 in.) Max.


C-Dual Wheels With 51 mm (2 in.) Spacer, 813 mm (32 in.)
Dual Wheels With 203 mm (8 in.) Spacer, 965 mm (38 in.)


D-Outer Dual Drive Wheel 3607 mm (142 in.) Min.
4191 mm (165 in.) Max.

AG,OUO1011,1753 -19-17MAR05-2/6


N67590
 

A-Guide Wheel Width From Factory, Center-To-Center Of Tires;
2082 or 2286 mm (82 or 90 in.)

B-Single Drive Wheel Width Center-To-Center Of Tires;
1981 mm (78 in.)
2311 mm (91 in.)
3048 mm (120 in.)

 

AG,OUO1011,1753 -19-17MAR05-3/6


N67593


A-1638 mm (64.5 in.)
B-2096 mm (82.5 in.)


C-1494 mm (58.8 in.)
D-1422 mm (56 in.)


E-3505 mm (138 in.)
F-3581 mm (141 in.)


G-5004 mm (197 in.)
H-4445 mm (175 in.)

AG,OUO1011,1753 -19-17MAR05-4/6


N67591


A-5334 mm (210 in.) Full Up Position With Extension Raised
4318 mm (170 in.) Transport Position With Extension Raised


B-4851 mm (191 in.) Full Up Position With Extension Lowered
3835 mm (151 in.) Transport Position With Extension Lowered


C-3658 mm (144 in.)


D-2026 mm (79.75 in.)

AG,OUO1011,1753 -19-17MAR05-5/6


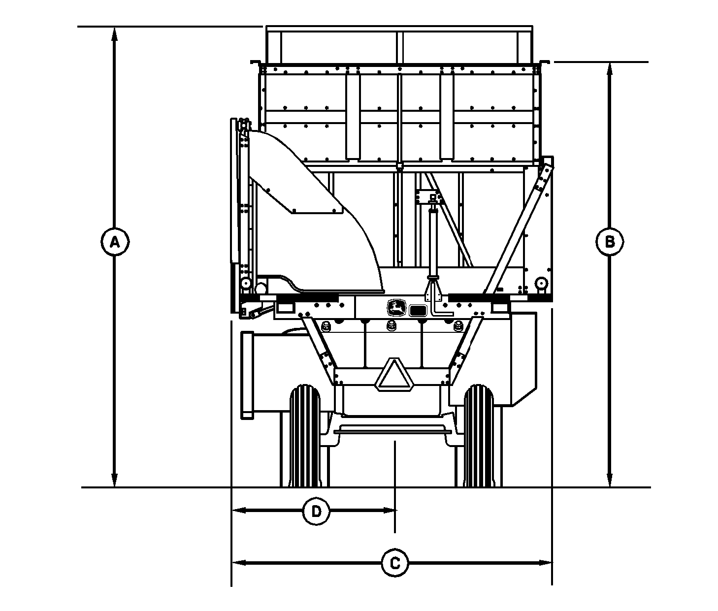
N67592


A-6421 mm (252.8 in.)
B-6121 mm (241 in.)
C-4204 mm (165.5 in.) (With Door Extension)


D-4006 mm (157.7 in.) (Without Door Extension)
E-3302 mm (130 in.)


F-3843 mm (151.3 in.) (With Door Extension)
G-3429 mm (135 in.) (Without Door Extension)


H-2316 mm (91.2 in.)

AG,OUO1011,1753 -19-17MAR05-6/6